Ausbaufähiges Penthouse-Dachgeschoss mit viel Potenzial – 165 m² Wohnfläche, flexibel nutzbar
30625 Hannover, Dachgeschosswohnung zum Kauf





Kontaktdaten
- NameHerr Architekt Pischtiwan Khanaqua-Blau
- AnschriftErnst-Grote-Str. 26
30916 Isernhagen - E-Mail
- Mobil
Objektdaten
- Objekt-ID165578211
- ObjekttypenDachgeschosswohnung, Wohnung
- Adresse30625 Hannover
(Kleefeld) - Etage4
- Etagen im Haus4
- Wohnfläche ca.165 m²
- Zimmer7
- Schlafzimmer5
- Badezimmer2
- HeizungsartEtagenheizung
- Wesentlicher EnergieträgerStrom
- Baujahr1937
- Kaufpreis199.000 EUR
Ausstattung / Merkmale
- ✓ Balkon/Terrasse
- ✓ Garten/Gartennutzung
- ✓ Keller
Objektbeschreibung
Beschreibung
In einem gepflegten Mehrfamilienhaus aus dem Baujahr 1937 bietet sich Ihnen eine seltene Gelegenheit: ein großzügiges Dachgeschoss im 4. Obergeschoss, das zu hochwertigem
Wohnraum ausgebaut werden kann. Die geplante Wohnfläche beträgt ca. 165 m² und eröffnet außergewöhnlich viele Nutzungsmöglichkeiten.
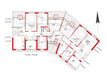
Das Dachgeschoss lässt sich entweder als eine großzügige Wohneinheit mit bis zu fünf
Schlafzimmern realisieren oder alternativ in zwei separate Wohnungen aufteilen – beispielsweise mit zwei und drei Schlafzimmern. Damit eignet sich das Objekt ideal sowohl für große Familien,
Mehrgenerationenwohnen als auch für Kapitalanleger.
Geplant sind zwei Bäder sowie zwei Terrassen, die zusätzlichen Wohnkomfort und attraktive Rückzugsorte im Freien schaffen. Die Raumaufteilung kann individuell gestaltet und an Ihre
persönlichen Bedürfnisse angepasst werden.
Ein besonderer Vorteil:
Sie haben die Möglichkeit, dem Dachgeschoss Ihren ganz persönlichen Charakter zu verleihen, indem Sie Materialien, Ausstattung und Grundrissgestaltung nach Ihrem eigenen Geschmack auswählen und umsetzen.
Das Gebäude verfügt über keinen Fahrstuhl, was den klassischen Altbaucharakter unterstreicht.
Dafür werden Sie mit einem hellen, ruhigen Wohngefühl über den Dächern der Stadt belohnt.
Highlights auf einen Blick:
- Ausbaufähiges Dachgeschoss / Penthouse
- Ca. 165 m² geplante Wohnfläche
- Nutzung als eine große Wohnung oder zwei separate Einheiten möglich
- Bis zu 5 Schlafzimmer realisierbar (insgesamt 7 Zimmer)
- 2 geplante Bäder
- 2 geplante Terrassen
- Baujahr 1937
- 4. Obergeschoss
- Große Gestaltungsfreiheit beim Ausbau
Ein Objekt mit Seltenheitswert und enormem Entwicklungspotenzial – ideal für alle, die Individualität und Flexibilität schätzen.
Ausstattung
Rohdachboden mit Baugenehmigung zum individuellen Ausbau!
Lage
Der Rohdachboden befindet sich in der Schulze-Delitzsch-Straße 15 in Hannover und liegt in einer besonders attraktiven innerstädtischen Wohnlage. Die Umgebung ist geprägt von gepflegten
Mehrfamilienhäusern, gewachsener Nachbarschaft und einer ruhigen, dennoch zentralen Atmosphäre.
Ein herausragendes Merkmal dieser Lage ist die unmittelbare Nähe zur Eilenriede, einem der größten innerstädtischen Stadtwälder Europas. Die Eilenriede ist fußläufig erreichbar und bietet zahlreiche Möglichkeiten für Spaziergänge, Jogging, Radfahren und Erholung im Grünen – ein
echter Mehrwert für die Lebensqualität.
Darüber hinaus befindet sich auch der Hermann-Löns-Park in kurzer Entfernung. Diese weitläufige Park- und Teichlandschaft zählt zu den beliebtesten Naherholungsgebieten Hannovers
und bietet ideale Bedingungen für Freizeit, Naturgenuss und Entspannung. Die Kombination aus Eilenriede und Hermann-Löns-Park macht die Lage besonders attraktiv für Naturliebhaber,
Familien und Ruhesuchende.
Einkaufsmöglichkeiten des täglichen Bedarfs, Cafés, Restaurants, Ärzte sowie Schulen und Kindergärten befinden sich im näheren Umfeld und sind bequem erreichbar. Die Anbindung an den
öffentlichen Personennahverkehr ist sehr gut; mehrere Bus- und Stadtbahnlinien ermöglichen eine schnelle Verbindung in die Innenstadt und zum Hauptbahnhof.
Insgesamt verbindet diese Lage urbanes Wohnen mit außergewöhnlich guten
Naherholungsmöglichkeiten und bietet damit ideale Voraussetzungen sowohl für Eigennutzer als auch für Kapitalanleger mit langfristiger Perspektive.
30625 Hannover, Deutschland (auf Google Maps ansehen)

